Sharing options
Realtor info
Office
broker
Akash Dhuney
Email
General
Indien u een bezichtiging wenst, gelieve deze schriftelijk aan te vragen via FUNDA -> plan een bezichtiging
Let op! Deze woning wordt aangeboden met een "bieden vanaf prijs"
In de kindvriendelijke en populaire wijk ‘het karveel’ staat te koop deze ruime 3-laagse TUSSENwoning met 5 slaapkamers, aangebouwde berging, eigen parkeerplaats met carport, nette badkamer en een zonnige tuin met ac... More info
Let op! Deze woning wordt aangeboden met een "bieden vanaf prijs"
In de kindvriendelijke en populaire wijk ‘het karveel’ staat te koop deze ruime 3-laagse TUSSENwoning met 5 slaapkamers, aangebouwde berging, eigen parkeerplaats met carport, nette badkamer en een zonnige tuin met ac... More info
| Features | |
|---|---|
| All characteristics | |
| Type of residence | House, single-family house, terraced house |
| Construction period | 1977 |
| Status | New for sale |
| Offered since | 16 January 2026 |
Features
| Offer | |
|---|---|
| Reference number | 00294 |
| Asking price | €375,000 |
| Status | New for sale |
| Acceptance | By consultation |
| Offered since | 16 January 2026 |
| Construction | |
|---|---|
| Type of residence | House, single-family house, terraced house |
| Type of construction | Existing estate |
| Construction period | 1977 |
| Surfaces and content | |
|---|---|
| Plot size | 138 m² |
| Floor Surface | 123.7 m² |
| Content | 421 m³ |
| Surface area other inner rooms | 5.7 m² |
| Layout | |
|---|---|
| Number of floors | 3 |
| Number of rooms | 6 (of which 5 bedrooms) |
| Number of bathrooms | 1 (and 1 separate toilet) |
| Garden | |
|---|---|
| Type | Back yard |
| Energy consumption | |
|---|---|
| Energy certificate | C |
| Boiler | |
|---|---|
| Year of manufacture | 2018 |
| Boiler ownership | Owned |
| Features | |
|---|---|
| Water heating | Central heating system |
| Heating | Central heating |
| Garden available | Yes |
| Cadastral informations | |
|---|---|
| Cadastral designation | Lelystad M 3779 |
| Area | 138 m² |
| Range | Entire lot |
| Ownership | Full ownership |
Description
Indien u een bezichtiging wenst, gelieve deze schriftelijk aan te vragen via FUNDA -> plan een bezichtiging
Let op! Deze woning wordt aangeboden met een "bieden vanaf prijs"
In de kindvriendelijke en populaire wijk ‘het karveel’ staat te koop deze ruime 3-laagse TUSSENwoning met 5 slaapkamers, aangebouwde berging, eigen parkeerplaats met carport, nette badkamer en een zonnige tuin met achterom.
De woning ligt zeer centraal ten opzichte van alle denkbare voorzieningen waaronder supermarkt(en), diverse scholen, OV, kinderopvang, veel groen en dit allemaal op loopafstand. Verder zijn de uitvalswegen prima te bereiken en bent u met maximaal 15 minuten op de A6.
INDELING:
Begane grond: (v.v. laminaattegels) - entree / hal met meterkast, trapopgang, deur naar de woonkamer - toiletruimte tot plafond betegeld met closet en fonteintje - ruime woonkamer met kunststof schuifpui, grote ramen met mooie lichtinval, trapkast - keuken in hoekopstelling met o.a. duropal aanrechtblad, RVS spoelbak en kraan, vaatwasser, oven, koelvriescombinatie, afzuigkap en diverse kasten
Tuin: Keurig aangelegde (2023) zonnige tuin gelegen op het westen. Voorzien van o.a. schutting met betonpalen, sierbestrating, achterom, waterkraan, gazon en zonnescherm
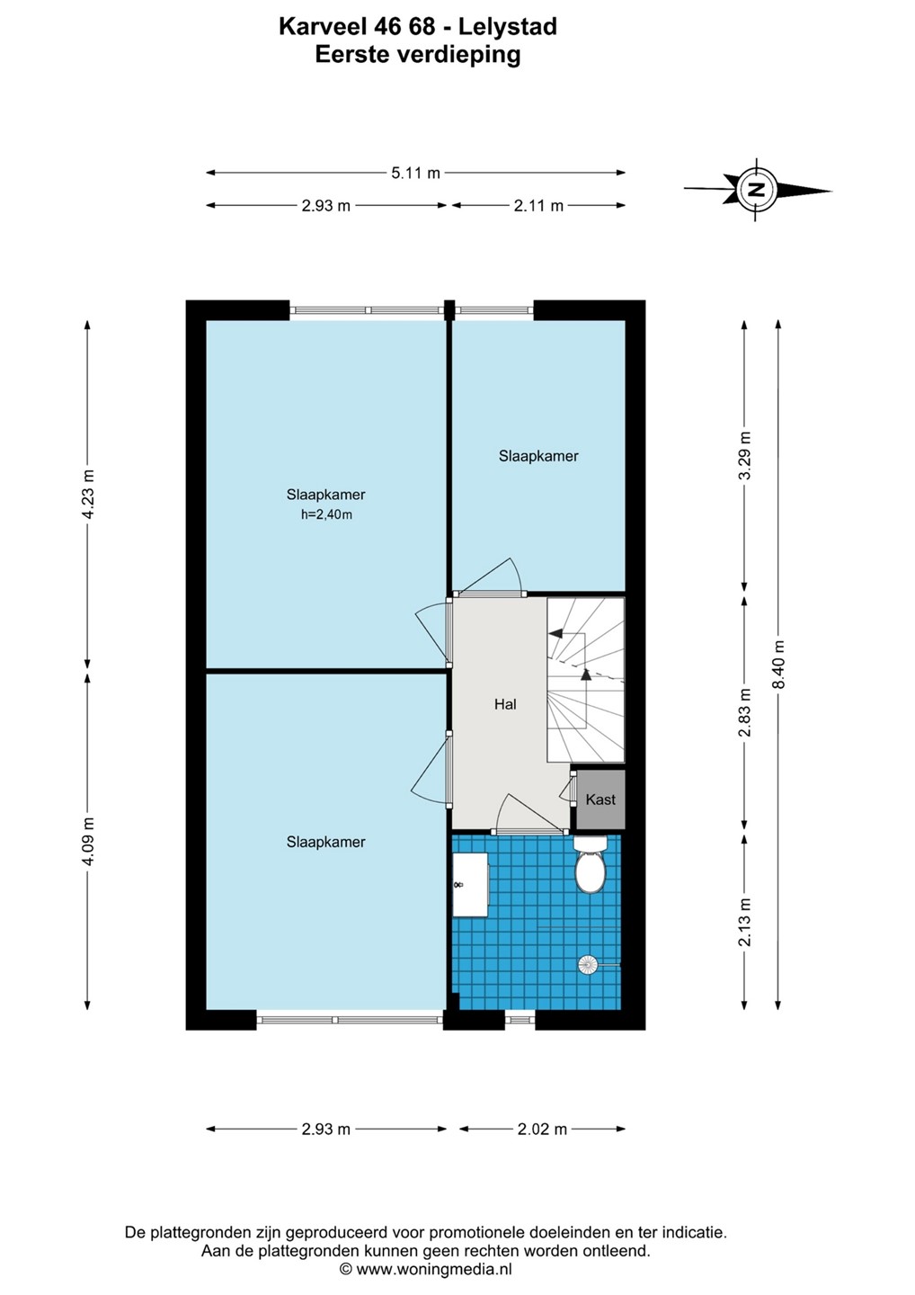
1e verdieping: (v.v. laminaatvloer) - overloop met toegang tot alle ruimtes - slaapkamer 1 gelegen aan de achterzijde van de woning - slaapkamer 2 gelegen aan de achterzijde van de woning - badkamer tot aan het plafond betegeld met o.a. toilet, douchecabine met regendouche, wastafelmeubel, designradiator, raam, toilet - slaapkamer 3 gelegen aan de voorzijde van de woning
2e verdieping: (v.v. vinylvloer) – Slaapkamer 4, aparte ruimte met o.a. wasmachine/droger opstelplaats, mechanische ventilatie, CV-ketel (Intergas) en omvormer zonnepanelen - slaapkamer 5
BIJZONDERHEDEN:
- zonnige achtertuin op het westen aangelegd in 2023
- parkeerplaats op eigen terrein met carport
- kunststof schuifpui met veel lichtinval
- ruime eengezinswoning
- populaire en kindvriendelijke wijk
Disclaimer:
De op deze website getoonde vrijblijvende informatie is door ons (met zorg) samengesteld op basis van gegevens van de verkoper (en/of derden). Deze tekst is zorgvuldig samengesteld, echter kunnen er geen rechten worden ontleend. Wij staan niet in voor de juistheid of volledigheid daarvan. Wij adviseren u en/of uw makelaar om contact met ons op te nemen bij interesse in een van onze woningen.
Let op! Deze woning wordt aangeboden met een "bieden vanaf prijs"
In de kindvriendelijke en populaire wijk ‘het karveel’ staat te koop deze ruime 3-laagse TUSSENwoning met 5 slaapkamers, aangebouwde berging, eigen parkeerplaats met carport, nette badkamer en een zonnige tuin met achterom.
De woning ligt zeer centraal ten opzichte van alle denkbare voorzieningen waaronder supermarkt(en), diverse scholen, OV, kinderopvang, veel groen en dit allemaal op loopafstand. Verder zijn de uitvalswegen prima te bereiken en bent u met maximaal 15 minuten op de A6.
INDELING:
Begane grond: (v.v. laminaattegels) - entree / hal met meterkast, trapopgang, deur naar de woonkamer - toiletruimte tot plafond betegeld met closet en fonteintje - ruime woonkamer met kunststof schuifpui, grote ramen met mooie lichtinval, trapkast - keuken in hoekopstelling met o.a. duropal aanrechtblad, RVS spoelbak en kraan, vaatwasser, oven, koelvriescombinatie, afzuigkap en diverse kasten
Tuin: Keurig aangelegde (2023) zonnige tuin gelegen op het westen. Voorzien van o.a. schutting met betonpalen, sierbestrating, achterom, waterkraan, gazon en zonnescherm
1e verdieping: (v.v. laminaatvloer) - overloop met toegang tot alle ruimtes - slaapkamer 1 gelegen aan de achterzijde van de woning - slaapkamer 2 gelegen aan de achterzijde van de woning - badkamer tot aan het plafond betegeld met o.a. toilet, douchecabine met regendouche, wastafelmeubel, designradiator, raam, toilet - slaapkamer 3 gelegen aan de voorzijde van de woning
2e verdieping: (v.v. vinylvloer) – Slaapkamer 4, aparte ruimte met o.a. wasmachine/droger opstelplaats, mechanische ventilatie, CV-ketel (Intergas) en omvormer zonnepanelen - slaapkamer 5
BIJZONDERHEDEN:
- zonnige achtertuin op het westen aangelegd in 2023
- parkeerplaats op eigen terrein met carport
- kunststof schuifpui met veel lichtinval
- ruime eengezinswoning
- populaire en kindvriendelijke wijk
Disclaimer:
De op deze website getoonde vrijblijvende informatie is door ons (met zorg) samengesteld op basis van gegevens van de verkoper (en/of derden). Deze tekst is zorgvuldig samengesteld, echter kunnen er geen rechten worden ontleend. Wij staan niet in voor de juistheid of volledigheid daarvan. Wij adviseren u en/of uw makelaar om contact met ons op te nemen bij interesse in een van onze woningen.