Sharing options
Realtor info
Office
broker
Akash Dhuney
Email
General
Indien u een bezichtiging wenst, gelieve deze schriftelijk aan te vragen via FUNDA -> plan een bezichtiging
Nette eengezinswoning met voor- en achtertuin op toplocatie in Zuidoost!
Op een rustige en groene locatie in Amsterdam-Zuidoost bieden wij deze nette tussenwoning met twee woonlagen aan. De woning heeft een woonoppervlakte van 84 m², een energielabel C en beschikt over zowel een voo... More info
Nette eengezinswoning met voor- en achtertuin op toplocatie in Zuidoost!
Op een rustige en groene locatie in Amsterdam-Zuidoost bieden wij deze nette tussenwoning met twee woonlagen aan. De woning heeft een woonoppervlakte van 84 m², een energielabel C en beschikt over zowel een voo... More info
| Features | |
|---|---|
| All characteristics | |
| Type of residence | House, single-family house, terraced house |
| Construction period | 1984 |
| Status | Under offer |
| Offered since | 31 October 2025 |
Features
| Offer | |
|---|---|
| Reference number | 00284 |
| Asking price | €475,000 |
| Status | Under offer |
| Acceptance | By consultation |
| Offered since | 31 October 2025 |
| Last updated | 24 November 2025 |
| Construction | |
|---|---|
| Type of residence | House, single-family house, terraced house |
| Type of construction | Existing estate |
| Construction period | 1984 |
| Surfaces and content | |
|---|---|
| Plot size | 118 m² |
| Floor Surface | 83.8 m² |
| Content | 278 m³ |
| External surface area storage rooms | 5.1 m² |
| Layout | |
|---|---|
| Number of floors | 2 |
| Number of rooms | 4 (of which 3 bedrooms) |
| Number of bathrooms | 1 (and 1 separate toilet) |
| Garden | |
|---|---|
| Type | Back yard |
| Main garden | Yes |
| Orientation | South west |
| Energy consumption | |
|---|---|
| Energy certificate | C |
| Features | |
|---|---|
| Garden available | Yes |
| Cadastral informations | |
|---|---|
| Cadastral designation | Amsterdam L 8532 |
| Area | 118 m² |
| Range | Entire lot |
| Ownership | Property encumbered with ground lease |
| Charges | Perpetually bought off |
Description
Indien u een bezichtiging wenst, gelieve deze schriftelijk aan te vragen via FUNDA -> plan een bezichtiging
Nette eengezinswoning met voor- en achtertuin op toplocatie in Zuidoost!
Op een rustige en groene locatie in Amsterdam-Zuidoost bieden wij deze nette tussenwoning met twee woonlagen aan. De woning heeft een woonoppervlakte van 84 m², een energielabel C en beschikt over zowel een voor- als achtertuin. De achtertuin is gunstig gelegen op het zuidwesten, ideaal om in de middag en avond van de zon te genieten. Aan de voorzijde bevindt zich een voortuin op het noordoosten, waar je juist in de ochtendzon fijn kunt zitten.
Met drie slaapkamers, een ruime woonkamer en een praktische indeling is dit een ideale gezinswoning waar je direct in kunt trekken. De woning ligt in een rustige straat met volop parkeergelegenheid en veel groen in de omgeving. Voorzieningen zoals winkels, scholen, kinderopvang en sportfaciliteiten zijn nabijgelegen. Ook het openbaar vervoer en de uitvalswegen (A9, A2 en A10) zijn goed bereikbaar, waardoor zowel het centrum van Amsterdam als andere steden eenvoudig te bereiken zijn.
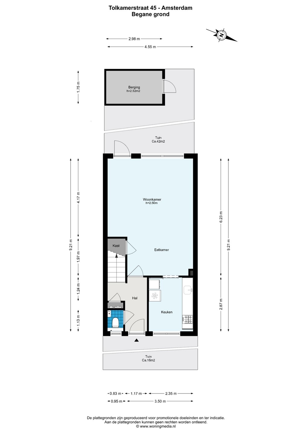
Indeling
Begane grond
Via de entree kom je in de hal met garderobe, toilet en trapopgang. Vanuit de hal bereik je de lichte woonkamer die is ingedeeld met een zitgedeelte aan de tuinzijde en een eethoek richting de keuken. Dankzij de grote raampartijen is er veel daglicht. De keuken is gesitueerd aan de voorzijde en biedt voldoende werk- en opbergruimte, evenals de mogelijkheid om met inbouwapparatuur naar eigen smaak uit te breiden of te moderniseren.
Eerste verdieping
Op de eerste verdieping bevinden zich drie slaapkamers van goed formaat, geschikt als master bedroom, kinderkamer of werkkamer. De badkamer is praktisch ingericht met douche, wastafel en tweede toilet.
Buiten
Achtertuin op het zuidwesten: heerlijk zonnig in de middag en avond, met ruimte voor een loungehoek of speelplek.
Voortuin op het noordoosten: een prettige plek om in de ochtendzon te ontbijten of een kop koffie te drinken.
Bijzonderheden:
Woonoppervlakte: ca. 84 m²
Perceel: ca. 118 m²
Energielabel: C
Bouwjaar: 1984
3 slaapkamers
Voortuin op het noordoosten
Achtertuin op het zuidwesten
Mogelijkheid tot opbouw
Erfpacht: eeuwigdurend afgekocht
Disclaimer:
De op deze website getoonde vrijblijvende informatie is door ons (met zorg) samengesteld op basis van gegevens van de verkoper (en/of derden). Deze tekst is zorgvuldig samengesteld, echter kunnen er geen rechten worden ontleend. Wij staan niet in voor de juistheid of volledigheid daarvan. Wij adviseren u en/of uw makelaar om contact met ons op te nemen bij interesse in een van onze woningen.
Nette eengezinswoning met voor- en achtertuin op toplocatie in Zuidoost!
Op een rustige en groene locatie in Amsterdam-Zuidoost bieden wij deze nette tussenwoning met twee woonlagen aan. De woning heeft een woonoppervlakte van 84 m², een energielabel C en beschikt over zowel een voor- als achtertuin. De achtertuin is gunstig gelegen op het zuidwesten, ideaal om in de middag en avond van de zon te genieten. Aan de voorzijde bevindt zich een voortuin op het noordoosten, waar je juist in de ochtendzon fijn kunt zitten.
Met drie slaapkamers, een ruime woonkamer en een praktische indeling is dit een ideale gezinswoning waar je direct in kunt trekken. De woning ligt in een rustige straat met volop parkeergelegenheid en veel groen in de omgeving. Voorzieningen zoals winkels, scholen, kinderopvang en sportfaciliteiten zijn nabijgelegen. Ook het openbaar vervoer en de uitvalswegen (A9, A2 en A10) zijn goed bereikbaar, waardoor zowel het centrum van Amsterdam als andere steden eenvoudig te bereiken zijn.
Indeling
Begane grond
Via de entree kom je in de hal met garderobe, toilet en trapopgang. Vanuit de hal bereik je de lichte woonkamer die is ingedeeld met een zitgedeelte aan de tuinzijde en een eethoek richting de keuken. Dankzij de grote raampartijen is er veel daglicht. De keuken is gesitueerd aan de voorzijde en biedt voldoende werk- en opbergruimte, evenals de mogelijkheid om met inbouwapparatuur naar eigen smaak uit te breiden of te moderniseren.
Eerste verdieping
Op de eerste verdieping bevinden zich drie slaapkamers van goed formaat, geschikt als master bedroom, kinderkamer of werkkamer. De badkamer is praktisch ingericht met douche, wastafel en tweede toilet.
Buiten
Achtertuin op het zuidwesten: heerlijk zonnig in de middag en avond, met ruimte voor een loungehoek of speelplek.
Voortuin op het noordoosten: een prettige plek om in de ochtendzon te ontbijten of een kop koffie te drinken.
Bijzonderheden:
Woonoppervlakte: ca. 84 m²
Perceel: ca. 118 m²
Energielabel: C
Bouwjaar: 1984
3 slaapkamers
Voortuin op het noordoosten
Achtertuin op het zuidwesten
Mogelijkheid tot opbouw
Erfpacht: eeuwigdurend afgekocht
Disclaimer:
De op deze website getoonde vrijblijvende informatie is door ons (met zorg) samengesteld op basis van gegevens van de verkoper (en/of derden). Deze tekst is zorgvuldig samengesteld, echter kunnen er geen rechten worden ontleend. Wij staan niet in voor de juistheid of volledigheid daarvan. Wij adviseren u en/of uw makelaar om contact met ons op te nemen bij interesse in een van onze woningen.